$10.95

4x8 Lean To Shed Plans - PDF Download

Buy this

4x8 Lean To Shed Plans - PDF Download

$10.95

This is the complete 4x8 Lean To Shed Plans including everything you need to build a sturdy and beautiful lean to shed. Measurements are in imperial units, instructions are concise and made for all skill levels from beginners to expert DIYers. The plans are designed to be efficient, helping you to save on materials and time. You can easily modify the plans to fit your requirement.

Build Features:

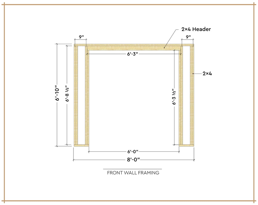
Build Size: 4' (Depth) x 8' (Width) x 9'-0" (Height)
Single Door: 6' W x 6'-5" H
Roof Truss: Rafters 16" O.C.
Foundation: 4x4 Skid
Floor & Wall Framing: 2x4 16" O.C.

Buy this

Complete PDF Plans Instant Download (8.5"x11")

Size
1.93 MB
Length
34 pages

No refunds allowed

Once your file is downloaded, digital products do not qualify for returns, exchanges, or cancellations. Please contact the seller about any problems with your order.

Last updated Apr 9, 2025

Powered by